Top > 賃貸物件一覧 >

物件NO:S2042RE


下田市西本郷一丁目
伊豆急下田駅、100m、徒歩2分
4階建てビルの3階部分、事務所、店舗等向き
エアコン(2)、トイレ(2)、照明器具付
家賃 月額8万円
スライドショー表示領域
↑※スライドショー方式でこの物件をご覧いただけます。
<< この物件についてメールで問い合わせする >>
※各写真をクリックすると拡大表示します。
※図面と現況が相違する場合には、現況優先とします。
伊豆 不動産 物件 情報 写真 1
建物外観
伊豆 不動産 物件 情報 写真 2
間取り
伊豆 不動産 物件 情報 写真 3
建物サイズ
伊豆 不動産 物件 情報 写真 4
前面の道路
伊豆 不動産 物件 情報 写真 5
建物外観
伊豆 不動産 物件 情報 写真 6
隣はドラッグストア
セイジョー
伊豆下田店
伊豆 不動産 物件 情報 写真 7
建物外観
1階部分
伊豆 不動産 物件 情報 写真 8
階段で3階へ
伊豆 不動産 物件 情報 写真 9
3階
伊豆 不動産 物件 情報 写真 10
和式トイレあり
伊豆 不動産 物件 情報 写真 11
和式トイレ
伊豆 不動産 物件 情報 写真 12
室内
伊豆 不動産 物件 情報 写真 13
流し台
伊豆 不動産 物件 情報 写真 14
室内
伊豆 不動産 物件 情報 写真 15
南側
窓からの景色
伊豆 不動産 物件 情報 写真 16
エアコン付
伊豆 不動産 物件 情報 写真 17
室内
伊豆 不動産 物件 情報 写真 18
室内
伊豆 不動産 物件 情報 写真 19
室内
伊豆 不動産 物件 情報 写真 20
エアコン付
伊豆 不動産 物件 情報 写真 21
室内
伊豆 不動産 物件 情報 写真 22
室内
洋式トイレ
伊豆 不動産 物件 情報 写真 23
流し台
伊豆 不動産 物件 情報 写真 16
北側
ドアあり
伊豆 不動産 物件 情報 写真 25
北側からの景色

■当社からの
コメント
  • 伊豆急下田駅まで100m、徒歩2分。
  • 隣はドラッグストア(セイジョー伊豆下田店)。
  • S58.3築(1983)、築約42年。
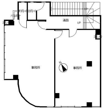
  • 鉄骨造陸屋根4階建ビルの3階部分。(フロアー貸)
  • 床面積53.09u。
  • 事務所向き。
  • 現況渡し。
  • 流し台小(2)あり。
  • 洋式トイレと和式トイレあり。
  • エアコン(2)設置済み。
  • 照明器具設置済み。
  • ガスなし。
  • エレベータなし。
  • 電気、水道の契約は2室分。(個別にブレーカーあり)
  • 1階、入口にはシャッターあり(カギ付)。
  • 事務所、店舗等に最適。
  • 住居には不向き。(浴室なし)
  • 敷地内に駐車場なし。
  • 目の前に別途、有料駐車場あり。
  • 駐車場は月額7,700円あり。(位置指定なし)
  • 駐車場は時間貸もあり。
  • ペットの飼育は不可。
  • 現況渡し。
  • リフォーム等は相談可能。
■間取り
■物件詳細

(画像をクリックするとPDFファイルを表示します。)
■AIによる物件解説

(画像をクリックするとYouTubeで物件の解説を閲覧することができます。)
■Google Map
(おおよその周辺の地図を表示します。)
■Street
View
■契約時
必要なもの
  • 認印
  • 契約時に必要な費用(上記の販売図面をご覧ください。)。
  • 住民票 1通
  • 運転免許証など写真付で本人の確認できるもの。
  • 事前に連帯保証人の記入、捺印(実印)、印鑑証明1通。

※物件の周辺のことは、当社、企画・作成・運営の以下のサイトをご覧下さい。伊豆、下田、河津、南伊豆の情報が満載です。
下田市観光ガイドマップ
伊豆・白浜
下田デジタル写真館


有限会社伊豆レインボーコム
TEL 0558-25-2171 / FAX 0558-27-1337
E-mail info@izurainbow.com
(C) Copyrights 2005 Izu Rainbow Com Co.,Ltd. All Rights Reserved